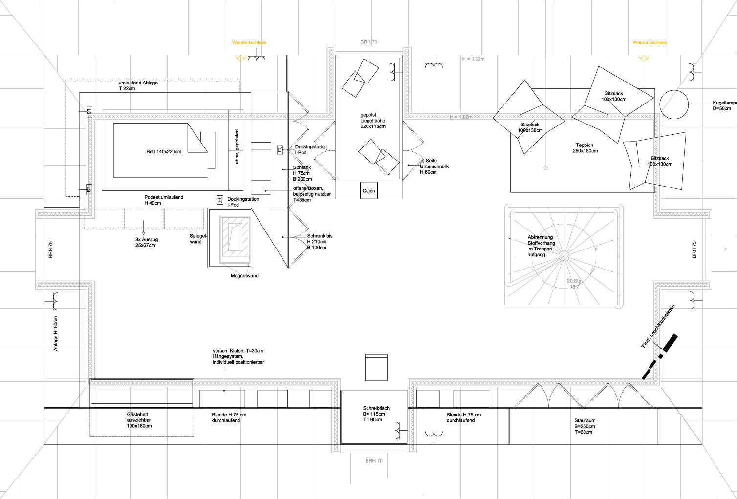
KIDS’ ROOM – Under The Roof
Interior Design
Task Area
- Concept
- Draft
- Design & Implementation Planning
- Visualization
Interior Photographs
- Tara Wolff // www.tarawolff.com
Collaboration
- Snoeck & Co // www.snoeck-co.de
Client
- Private Customer
Location
- Hamburg
Finalization
- 2011








